|
29 червня 2020, 17:12
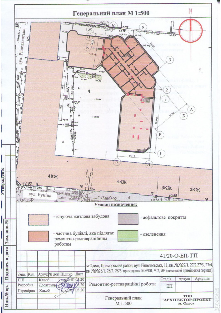
Горевший памятник архитектуры на Ришельевской реставрируют за счет города и собираются «украсить» частной мансардойРемонтно-реставрационные и строительные работы ведутся в доме №11 по Ришельевской (угол Бунина), горевшем в феврале прошлого года. Как передает корреспондент «Думской», здание уже получило новую крышу, и сейчас рабочие занимаются дворовыми фасадами. Главные фасады пока не трогали. В роли подрядчика ремонта фасада и крыши выступает компания «Строй-элит», которая должна получить из муниципального бюджета 12,6 млн грн. Первоначально она обязалась сдать объект до декабря 2020 года, но впоследствии с ней заключили дополнительный договор, продлив сроки выполнения работ на год. Надо сказать, что эта и ряд других сделок между городским управлением капстроительства и «Строй-элит» заинтересовали правоохранительные органы. В декабре 2019-го полиция начала уголовное производство по ч. 5 ст. 191 УК Украины (присвоение, растрата имущества или завладение им путем злоупотребления служебным положением в особо крупных размерах). О подозрении, правда, пока никому не объявляли, хотя ряд имен в материалах фигурирует. По данным следствия, стороны завышали сметы работ и городу был нанесен серьезный ущерб. Судя по всему, именно действия правоохранителей затормозили реставрацию. Параллельно с ней в здании ведется локальная реконструкция — за средства частной компании и физлиц. Недавно городское управление архитектуры выдало сразу два ГУО (градостроительные условия и ограничения) на проектирование объектов строительства. Одни получило частное предприятие «32», которое в 2018 году купило у города помещение чердака площадью 1413,2 кв. м. Фирме разрешили произвести «реставрационные работы без изменения внешних геометрических размеров фундамента в плане, с внутренним перепланированием, с приспособлением под жилые цели, апартаменты и офисные помещения». Бенефициар «32» — некий Вадим Яновский, который на выборах 2015 года был наблюдателем от партии «Доверяй делам». Яновский имеет отношение еще к ряду фирм, занимающихся строительством в разных частях города. Еще одни градостроительные условия и ограничения выдали группе физических лиц, владеющих квартирами №27/1, 27/2, 27/3, 27/4, 28/1, 28/2, 28/6 и нежилыми помещениями чердака №901, 902 и 903. Им дали добро на проектирование «реабилитации (ремонтно-реставрационных работ) нежилых помещений чердака с приспособлением под мансардный этаж для размещения жилых помещений и квартир, размещенных на уровне четвертого этажа с внутренним перепланированием». Судя по всему, речь идет о всей верхней части внутреннего флигеля памятника архитектуры, работа на которой уже кипит. Отметим, что именно там, в квартире №28, в феврале 2019 года и вспыхнул пожар. Тогда в мэрии заявили, что причиной возгорания были незаконные ремонтные работы. В городском ГАСКе информацию подтвердили и сообщили, что еще в апреле 2018 года собственник на основании поддельных документов незаконно увеличил площадь квартиры, а затем продал ее. В июле новый собственник начал ремонтные работы, на которые тоже не было документов. Напомним, пожар на Ришельевской, 11 произошел утром 22 февраля 2019 года. Горела крыша здания на площади 800 квадратных метров. Во время пожара произошел взрыв газового баллона, в результате которого ушибы получил один сотрудник ГСЧС. Других пострадавших нет. Спасатели вывели из горящего дома 40 человек, в том числе 12 детей. Огонь повредил две квартиры, еще 11 были залиты водой при тушении. По информации Порто-Франковского ЖКС, это - уже второй пожар в данном доме за последние несколько лет. Ришельевская, 11 - памятник архитектуры местного значения «дом доходный Баржанского». Был построен в 1873 году по проекту Феликса Гонсиоровского. Также является памятником истории (здесь в 1944-1969 году жил отоларинголог Гешелин). Входит в состав комплекса из двух зданий «Ришельевская, 11 - Бунина, 18». СМЕРТЬ РОСІЙСЬКИМ ОКУПАНТАМ! Помітили помилку? Виділяйте слова з помилкою та натискайте control-enter Новини по цій темі: 25 листопада 2025: У центрі Одеси провалився балкон пам'ятки архітектури: постраждали дві жінки, одна з них у комі (фото, відео) 14 листопада 2025: Зберегти «Одесу»: в серці міста руйнуєтся історична будівля алкогольних магнатів, а рятують її на папері 27 вересня 2025: Відстежуватимуть Оперний і наслідки прильотів: на знакових одеських будівлях встановлять супердатчики (фото) |
Статті:
Ухудшение погоды и сильный ветер с порывами до 12-17 м/с прогнозируют синоптики в Одессе и области 21 апреля. Читать дальше Читать дальше Читать дальше |
||||||||||||||||||||||||||||||||||||||||||||||||
|
В Одессе и области объявили штормовое предупреждение: людей просят не ходить под балконами и не бросать авто под деревьями
| |||||||||||||||||||||||||||||||||||||||||||||||||
































