|
17 вересня 2020, 17:41
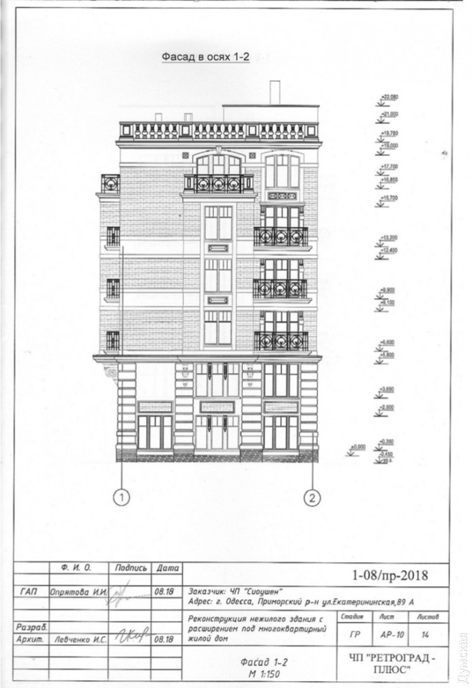
Футболисты-отельеры хотят украсить высоткой благоустроенный дворик в центре ОдессыВ ухоженном дворике на Екатерининской, 89/1 хотят построить многоэтажный жилой дом. Градостроительные условия и ограничения на застройку всего 1,8 сотки земли получило ЧП «Сиоушен», передает корреспондент «Думской». Официально работы назвали реконструкцией с расширением под многоквартирный жилой дом высотой от 18,6 до 21,3 м (это шесть-семь этажей). Договор аренды земли подписали с мэрией в марте этого года. Участок расположен в границах центрального исторического ареала Одессы. Учредители «Сиоушен» — Олег Самсонов и Егор Светличный. Самсонов — в прошлом футболист и вице-президент футбольного клуба «Одесса». Является близким соратником Андрея Продаевича — сына экс-председателя хозяйственного суда Одесской области Валентина Продаевича (он же и владеет ФК «Одесса»). «Сиоушен», в свою очередь, является учредителем общественного союза «Федерация футзала Одесской области». Вместе с неким Алексеем Турком Самсонов владеет арендным предприятием «Гарант». Фирме принадлежит торговая марка Good night hotel, а одноименный отель расположен во дворе, где намечается строительство жилого дома. Также Самсонов является учредителем ООО «Компания Айленд» — вместе с дочерью депутата горсовета от партии «Доверяй делам» Натальей Матвеевой. Основной вид деятельности фирмы — гостиничный бизнес. Известно, что еще в 2017 году Самсонов презентовал проект строительства спорткомплекса на склонах в районе пляжа «Ланжерон» от имени общественной организации инвалидов «Восток». В апреле этого года стало известно, что территорию будет осваивать ООО «Дакир», учредителями которой являются Алексей Фоменко, Лидия Делинская, Юрий Зарудный и Виталий Грицюк (соучредитель «Востока»). Инвестора подыскивал сам вице-мэр Павел Вугельман. Егор Светличный — управляющий крупной транспортно-экспедиторской компании «Одемара», которая занимается фрахтованием и судовым агентированием. СМЕРТЬ РОСІЙСЬКИМ ОКУПАНТАМ! Помітили помилку? Виділяйте слова з помилкою та натискайте control-enter Новини по цій темі: 25 листопада 2025: У центрі Одеси провалився балкон пам'ятки архітектури: постраждали дві жінки, одна з них у комі (фото, відео) 14 листопада 2025: Зберегти «Одесу»: в серці міста руйнуєтся історична будівля алкогольних магнатів, а рятують її на папері 27 вересня 2025: Відстежуватимуть Оперний і наслідки прильотів: на знакових одеських будівлях встановлять супердатчики (фото) |
Статті:
По информации «Думской», судно шло в одесский порт, чтобы встать под погрузку 28 тысяч тонн зерна. В момент атаки балкер был на расстоянии 10 миль (18 километров) от якорной стоянки порта. Читать дальше Бывший заместитель Генерального прокурора Украины Дмитрий Вербицкий, чья карьера завершилась после громких журналистских расследований, потерпел фиаско в суде. Читать дальше |
||||||||||||||||||||||||||||||||||||||||||||||

























