Кравоца Пространство



1 серпня 2018, 18:19   

В Одессе заработают две новые мечети: одна даже с минаретом  


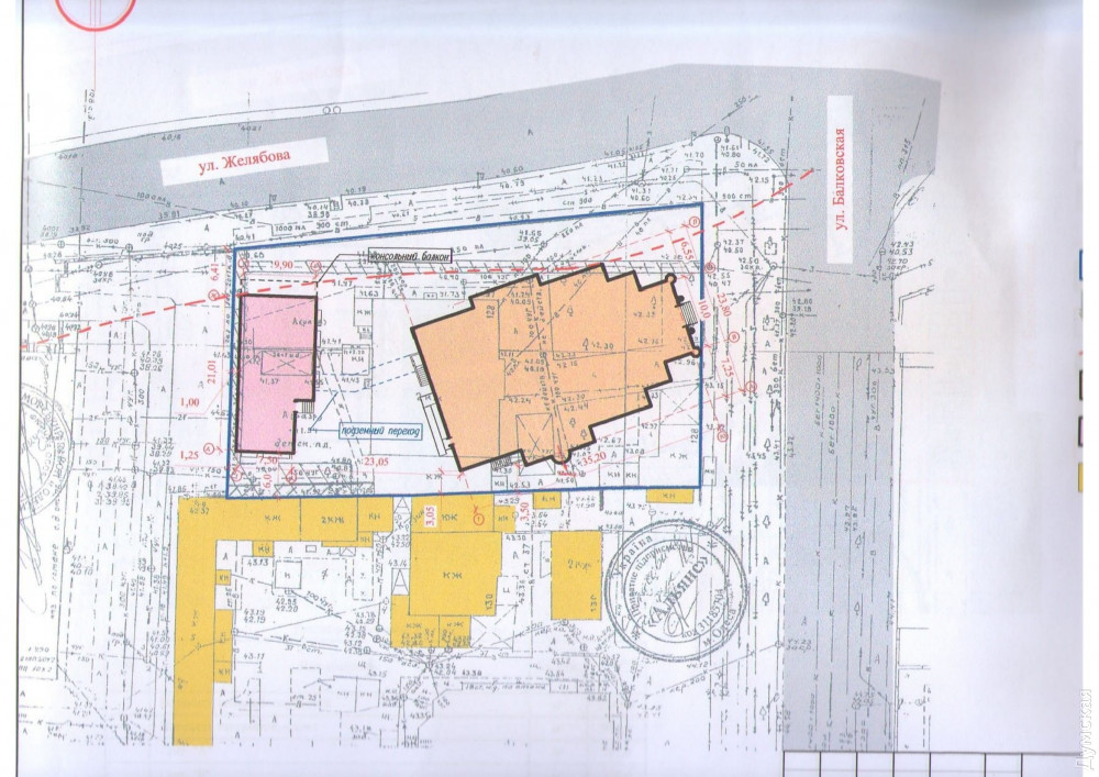
Одна из мусульманских общин Одессы намерена построить новую мечеть на Балковской, 128а — вместо здания бывшего детсада, которое она использует в качестве молельного дома с 1994 года.

Градостроительные условия и ограничения община получила в мае этого года, сейчас на участке ведутся подготовительные работы, сообщили «Думской» в муниципальном управлении архитектуры и градостроительства.




Новое культовое сооружение будет возведено в классическом стиле, с куполом высотой примерно 28 метров, 22-метровым главным минаретом и еще четырьмя башнями поменьше. Кстати, это будет первая одесская мечеть, снабженная минаретами.

Чиновники обязали мусульман обеспечить шумозащиту, чтобы не тревожить соседей: установить звукопоглощающие конструкции или акустические экраны.

За мечетью возведут административное здание общины. Их соединят подземным переходом.

О сроках строительства и подрядчике пока ничего не известно.

Еще одна новая мечеть — без минарета и купола, зато с айваном (сводчатое помещение, с трех сторон обнесенное стеной и открытое с четвертой стороны), уже построена на 10-й станции Большого Фонтана, возле 31-й «Жемчужины». Рядом с ней возвели православный храм.  

Таким образом, всего в Одессе будет пять исламских молитвенных домов: на Ришельевской (Арабский культурный центр), «Аль-Фуркан» на Багрицкого, «Аль Масар» на площади Молодежи, на Балковской и Фонтане.

ОБНОВЛЕНО В 19:20. Оказывается, здание бывшего детсада, на месте которого вырастет мечеть, историческое. Когда-то оно принадлежало римо-католической общине, в нем располагалось училище для детей обоих полов. Детским садом оно стало в 1930-х, когда коммунисты взорвали находившийся рядом костел Святого Климента. В 90-е католики вернулись, но сейчас они занимают лишь часть своей бывшей территории — дом притча на Балковской, 209, превращенный в храм.

 
СМЕРТЬ РОСІЙСЬКИМ ОКУПАНТАМ!


Мечеть на Фонтане - без купола и минарета, зато с айваном. Фото пользователя www.skyscrapercity.com  Drew Odder
Мечеть на Фонтане - без купола и минарета, зато с айваном. Фото пользователя www.skyscrapercity.com Drew Odder

Здание бывшего католического училища и приюта на Балковской, которое снесут ради мечети
Здание бывшего католического училища и приюта на Балковской, которое снесут ради мечети







Помітили помилку? Виділяйте слова з помилкою та натискайте control-enter




Александр Архипенко
ничего плохого в этом как бы нет…
   Відповісти    
Читатель-писатель
Есть! Религия- опиум для народа! Забыли?
   Відповісти    

Servus⁽*⁾
и муэдзин будет радовать жителей ближайших домов?
   Відповісти    
Цeнзор
На Ришельевской улице возле мечети никто не жалуется.
   Відповісти    
Servus⁽*⁾
а потом еще начнутся разборки шииты против сунитов, или турки против курдов?
   Відповісти    
Muhamedov
Курди та турки — суніти, а не шиїти.
   Відповісти    
Мухаммад
Одесі потрібна шиїтська мечеть.
   Відповісти    

Luckcat
Luckcat 1 серпня 2018, 18:35     +10      
Кто это в Одессе так активно ислам продвигает? Откуда столько мусульман? Молельного дома им не хватает что-ли?
NEWSru.com :: В Швейцарии запретили строить минареты
   Відповісти    
Servus⁽*⁾
кто-то "с божьим благословением"
   Відповісти    
dolento
Задайте питання Гурвіцу, за скільки міліонів він продав місце, під забудову на Ришельєвській Арабського Центру?
   Відповісти    
advokatTerrazini
advokatTerrazini   Proxy 1 серпня 2018, 18:55     +7      
вот, Luckcat, оказывается кто ислам продвигает! Гурвиц!
исламский фундаменталист.
   Відповісти    
іnquіsitіо77
я категорически против любых этих мусульманских минаретов и тд. эта мультикультурность ни к чему хорошему не приведет, европа уже нажралась этих мусульман и нажрется еще больше, и вообще, пусть едут к себе в страну и там проповедуют что хотят.
если мы христианская страна нам это ни к чему.
   Відповісти    
advokatTerrazini
advokatTerrazini   Proxy 1 серпня 2018, 19:01     +3      
где это сказано, что мы христианская страна?
не при Торквемаде живём.
   Відповісти    

Luckcat
На Б.Фонтане круглый год наблюдаю большое количество наших женщин замотанных в эти мусульманские платки и одеяния. Видимо это такая схема имиграции — женились на украинке и быстро получили гражданство Украины.Или я ошибаюсь? Кто расскажет подробнее об этом?
   Відповісти    
Orfeus
Ужас.
   Відповісти    
Василий Мовчанюк
всё это отвратительно!
   Відповісти    

Великолепный
А-а Арабский культурный центр на ул. Ришельевской, 47, посчитали? Или это не мечеть?
   Відповісти    
1.Одессит
Попробуйте заикнуться о строительстве христианского храма где-нибудь в мусульманской стране.Интересно через сколько минут вам правоверные перережут горло?
   Відповісти    
Muhamedov
У Об'єднаних Арабських Еміратах є церкви (католицька, протестантська). Так, що не треба розповсюджувати брехню. Це в Саудівській Аравії немає церков.
   Відповісти    
Я имею вам сказать
Постойте, уважаемые, а у нас что детские сады лишние есть?
На каком основании детей района лишили сада, нового не построили, а тот что был, передали каким то там верующим, не важно какого вероисповедания?
   Відповісти    
Я имею вам сказать
Мне во. Ребёнка в сад отдать нужно, в центре, это тихий ужас. Я был в 8-ми садах, дети в очень стесненных условиях, почти нигде нет адекватных игровых и музыкальных залов. Часто разные группы в одном помещении, детям элементарно нет места и спят они на трёхъярусных кроватях
А город детские сады кому не попадя раздаёт. Я не против мусульман, я за детей!
   Відповісти    
m_a17
m_a17   страна по ip - od 1 серпня 2018, 19:36     -5      

> «Демография Европы (Исламская иммиграция)»
Это старые данные.. Интересно что сейчас)
   Відповісти    
mezzaniner
попробывали бы они это сделать в мичете (с)
   Відповісти    
Slavuta мрия
покупайте больше шаурмы, квартиры в кадоре, заправляйтесь на сокаре и будет в Одессе еще больше мечетей.
   Відповісти    
Majong
лучше бы снесли одну из «жемчужин» ради такого дела, а можно и не одну
   Відповісти    
kab99
Коментар порушує правила нашого сайту та був видалений.
   Відповісти    
Олег Константинов, главный редактор "Думской"
За ксенофобские высказывания — сразу бан
   Відповісти    
advokatTerrazini
advokatTerrazini   Proxy 1 серпня 2018, 21:40     +5      
а бан тут ещё и с предупреждениями бывает?
   Відповісти    

16-я база
Пока иуда продает город, мы неуклонно движемся к французской ситуации.
   Відповісти    
Tommy Hilfiger
Киван разрастается!!
   Відповісти    
Alban Salih
Коментар порушує правила нашого сайту та був видалений.
   Відповісти    
Starter
А я не против! Там напротив моя теща спит, здоровым детским сном…еженочно… Посмотрим, как она справится с минаретом!
   Відповісти    
Muhamedov
З мінарета не буде лунати молитва.
   Відповісти    
батарейка
ппц! Почему не отдать это здание католикам и не восстановить историческую справедливость?
   Відповісти    
C. Cattani
Потому что оно им не надо.
   Відповісти    
Muhamedov
У католиків є 3 костели
   Відповісти    
Василий Мовчанюк
А мнение одесситов спросили?
   Відповісти    
Shinji Ikari
При Саакашвили там были бы больницы и детские сады, а не эта херня.
   Відповісти    
валерка
Мда, если обычные местные религии просто грабят людей то мусульманские религии их ещё и убивают, как раз Одессе этого не хватает.
   Відповісти    
Вячеслав Хмель
Такие смелые тут и такие тупые. В жизни же полюбому строите из себя милых, умных людей. А тут «ыыы оны строят мечеть, они убийцыыы». Идиоты..

Вас вообще никто нк спрашивает. Есть адекватный мэр, есть мусульманская община со своими правами. На вашу желчь — всем все равно.

А когда количество мусульман-украинцев в мечетях ДУМУ стремительно движется к половине от общего контингента — вам вообще стоит задуматься, что скоро мечети в каждом квартале — будет в порядке вещей)
   Відповісти    
   Правила



17 квітня
16:16 П'ятий тральщик: до складу Військово-морських сил України в червні увійде корабель «Генічеськ»
1
14:12 Прокуратура проти монополіста: «Стальканат» викидають з ринку обслуговування одеських ліфтів через багаторічні махінації на тендерах
3
11:50 Майже 11 годин ліквідації наслідків атаки: кількість постраждалих в Одесі зросла до 36 осіб
1
10:28 Продавчиня з Одеси підробляла агентом ФСБ: жінці загрожує довічне увязнення фотографии
1
08:49 Удар по портовій інфраструктурі та заповіднику: ворог атакував Одеську область фотографии
1
16 квітня
21:23 Казарми замість квартир для військових: на Одещині миколаївський підрядник нажив понад 8 млн гривень
1
19:13 Покарання за борги чи корупційний інтерес? Мерія виселяє організацію інвалідів із приміщення в центрі Одеси фотографии
7
17:04 Генератори не рятують: одеське «Чудо-місто» покинуло 20% мешканців, а повернути електрику в будинки обіцяють до кінця літа (відео) видео
4
15:01 Петиція на підтримку директора одеського зоопарку набрала понад 1000 голосів: його місце зайняла ставлениця Кісловських
13
13:21 Зниклі безвісти та міністр на місці прильоту: в Одесі вже 26 постраждалих від атаки рф фотографии
12:40 Коригував удари по місту: в Одесі затримали таксиста-агента рф (фото)
10
10:49 Унаслідок ранкової атаки по Одесі постраждали три людини та ринок
09:31 В Одесі оголосили день жалоби: унаслідок удару рф восьмеро загиблих (оновлено)
9
09:15 «Я схопила документи і одразу був приліт»: одеситка — про жахи пережитої ночі (відео) видео
6
07:25 Нічний удар по Одесі: восьмеро людей загинули, ще 16 - постраждали (фото, відео) фотографии видео
4




Статті:

Одесский косплей Фарион: когда „патриотизм“ становится бронью от реальности (колонка)

Самая грустная Юморина: за чаем с факиром о бензине во рту, шрамах и друзьях, которые не вернутся

Жизнь после отопительного сезона: почему когенерация стала криминальной, как повзрослеть инфантильным одесситам и учимся ли мы на энергофейлах





17:28
ВІДБІЙ повітряної тривоги
48751


17:25
Локационно чисто
15


17:17
Последний на Овидиополь
3071


17:11
Грибовка/Санжейка
255


17:03
В Одесі покажуть новий балет Раду Поклітару «На прекрасному блакитному Дунаї»

Академічний театр «Київ Модерн-балет» представить виставу на дві дії у постановці Раду Поклітару. Хореографічна постановка на музику Йоганна Штрауса відкриє для глядачів Відень позаминулого століття, занурить у атмосферу невпинного свята. Дійство поєднує сучасний пластичний театр та бальні танці епохи ар-нуво, коли музика була мовою почуттів.

Читать дальше

16:55
2 штуки на Затоку/Каролино
29811


16:54
Ещё на Затоку
131


16:49
Минус один
282031









Думська в Viber
Ми використовуємо cookies    Ok    ×