|
30 липня 2019, 19:34
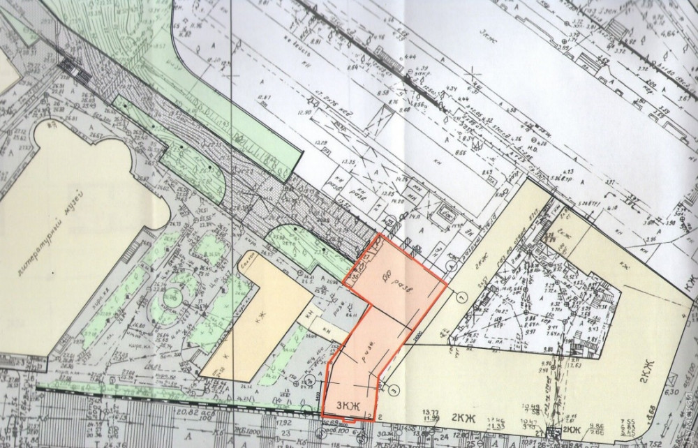
Вместо руин хлебных складов на Ланжероновском спуске построят «отель апартаментного типа»: в него можно будет попасть с Приморского бульвара«Отель апартаментного типа с помещениями дата-центра» построит на склоне под Литературным музеем компания «Трансрегионинвест-Украина». Недавно она получила в муниципальном управлении архитектуры и градостроительства градостроительные условия и ограничения для проектирования этого объекта. Фирма застроит участок площадью 0,046 га, который ей передали в аренду в апреле 2018 года. Сейчас на этой земле находятся руины здания XIX века. Некоторые считают, что они остались от турецких бань, но специалисты полагают, что это бывшие хлебные склады. Два года оттуда вывезли строительный и другой мусор. Отель будет пятиэтажным. На первом этаже разместится собственно гостиница и дата-центр, на втором — лобби, апартаменты, бюро-обслуживания, на 3-5 этажах — апартаменты. У здания будет два входа: один — с лестницы Ланжероновского спуска, другой — со стороны Приморского бульвара, который компания собирается продолжить. Напомним, кроме этой гостиницы, ООО «Трансрегионинвест-Украина» намерена возвести на Таможенной площади и Приморской улице 12-этажный торговый центр «Портико-молл» с выходом на Приморский бульвар в районе мэрии. СМЕРТЬ РОСІЙСЬКИМ ОКУПАНТАМ! Помітили помилку? Виділяйте слова з помилкою та натискайте control-enter Новини по цій темі: 8 травня 2023: Без висоток і девелоперів: українські та німецькі архітектори пропонують новий тип забудови Одеси та постраждалих міст (фото) 4 лютого 2022: Высотки на Французском и в центре города: активисты рассказали, как нехорошо может поменяться Одесса, и выгнали чиновника (фото, видео) 4 січня 2022: Новый спорткомплекс на Таирова построят за 194,8 млн грн: объявлен тендер (фото, видео) |
Статті:
По данным источников "Думской", оператором этой парковки (126 машиномест из 590 на всем побережье) будет ФОП Яблонская. Карина Яблонская жена Андрея Маковецкого. Последнюю декларацию он подал как главный специалист отдела делопроизводства, контроля и организационной работы исполнительного комитета Теплодарского горсовета, также он владелец охранных фирм «Ультра» и «Гвардия», а также консалтинговой компании "МИД", доли в которых переданы в управление. И парковку хотят отдать через решение исполкома. Читать дальше |
||||||||||||||||||||||||||||||||||||||||||||||||
|
Большую парковку одесского побережья отдают частникам: она достанется жене смотрящего за Теплодаром
Видео: «Раз - и все»: доктор наук — о трещине в одесской Аркадии, которая может разрастись (видео)
| |||||||||||||||||||||||||||||||||||||||||||||||||





























