зезман2



Градсовет со скандалом согласовал высотное строительство возле 411-й батареи  


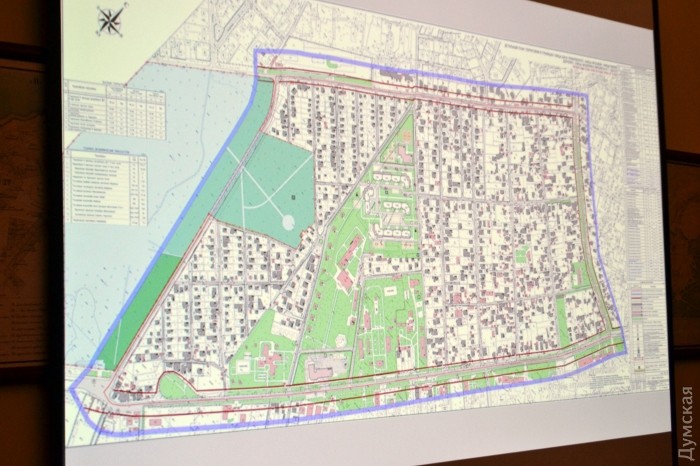
Несмотря на протесты обществености, члены градостроительного совета при муниципальном управлении архитектуры поддержали проект детального плана территории в границах улиц Дача Ковалевского, Ореховой, Марии Демченко, Академика Вильямса.

Проект предполагает строительство девяти 16-этажных и четырех девятиэтажных жилых домов в районе мемориала героической обороны Одессы «411 батарея», на территории базы отдыха Государственной академии строительства и архитектуры.




Кроме того, по словам архитектора Татьяны Барановой, которая представляла ДПТ, там разместят учебный комплекс на 240 детей, два детских садика на 50 мест каждый, а также медицинские амбулатории.

Баранова заверила, что будет расширена проезжая часть Ореховой улицы.

В свою очередь, заместитель начальника управления архитектуры и градостроительства Одесского горсовета Марат Касимов заявил, что «инвестор» — архитектурная академия — сохранит часть территории базы отдыха с общежитиями.

В парке 411-й батареи никто ничего строить не будет, а реконструкция дорог не предусматривает сноса каких-либо зданий, добавил чиновник.

Местные жители, которые присутствовали на заседании градсовета, довольно резко высказались против застройки рекреационной зоны 16-этажными домами. Градсовет, однако, к их требованиям не прислушался.

Отметим, что высотное жилье на этой территории предусмотрено действующим Генпланом города. Когда дорабатывали последний, академия утверждала, что высотки нужны ей «для повышения престижа»:

«Мы хотим приглашать на работу именитых преподавателей из других городов и даже из-за рубежа, но все они соглашаются на переезд только при условии предоставления жилья. Пока такой возможности у нас нет. Кроме того, у нас есть квартирная очередь, которая уже много лет не движется», — говорил тогда директор архитектурно-художественного института ОГАСА Валерий Уренев.

Никто не сомневается, что далеко не все жилье, если оно там будет построено, достанется вузовским очередникам или приглашенным светилам (а скорее всего, большую часть квартир займут люди, далекие от науки и сферы образования).

Фото, видео — Андрей Колисниченко


СМЕРТЬ РОСІЙСЬКИМ ОКУПАНТАМ!
Строить будут здесь
Строить будут здесь







Помітили помилку? Виділяйте слова з помилкою та натискайте control-enter


Новини по цій темі:





corban
Отлично. Ждем теперь оползень, как в Черноморске
   Відповісти    
Анатолий Николаевич
Сраные диьилы
Кто с арифметикой дружит?
Сколько квартир в 16 этажке? Каждая квартира  это семья, не факт что Молодая, но семья.. Делим количество квартир на 5  получаем количество детей Итак, по сухому выхлопу С одной 16 этажки, 20% садика забита Про школьников молчу вообще А про тех, кто живёт в частном секторе и 90% может отдать туда своих клеток  это Коллапс

По самым минимальным расчетам, нужно 400-500 садико мест, и 1800-1900 школомест
   Відповісти    
osobist
osobist   страна по ip - od 27 жовтня 2016, 10:02     +3      
Уважаемый, какой садик, какая школа? Никто ничего не построит, это просто мулька для отвода глаз! Сколько строительные компании построили новых садиков и школ в городе? Ответ все знают!
   Відповісти    

Марина Александрова
А что будет с частным сектором? Или там не люди? Они не живут в своих домах? Их не придется выселять с этих земель и предоставлять другое жилье? А у города есть другие дома и квартиры для этих людей? Для чужих строим, а своих — выселяем без жилья?
   Відповісти    
Светлана Подпалая
наивняк. «Каким образом было изменено целевое назначение рекреационной земли?» ЗОНИНГ, голуби мои, ПРИНЯТ.
Полгода мы его держали, руками и зубами. Добивались того, чтобы  зеленые, рекреационные зоны Генплана были повторены в зонинге. Теперь отменяйте решение сессии.
   Відповісти    
Mysterio
Mysterio   страна по ip - od 26 жовтня 2016, 21:24     +14      
Сволочи, там такой спокойный и затишный район, без пробок, без обилия машин, высоток и магазинов и все пойдет по одному месту.
   Відповісти    
ДимЮрич
3, 14дерасты — одним словом.
   Відповісти    
ДруХ деЦтва
Пропала 411. Вначале налепят домов, а потом начнут откусывать от парка куски. Мемориал свернут до размера небольшой площадки-музея :( 
   Відповісти    
ДимЮрич
На кой ляд, спрашивается, жить в таком городе? Где все превращают в бетонные стены?
   Відповісти    
palmir
…как же люди воспринимают свой город, свое предметно-пространственное окружение? Эксперименты (в частности, — застройки 411)идут для подтверждения мнимой обьективности и придания ОЧЕВИДНОСТИ ВСЕМУ ОКРУЖЕНИЮ-то есть, ЛЮДИ -только отражают ДЕЙСТВИТЕЛЬНОСТЬ!!!
 Охи и Ахи -спуск пара и не более…
   Відповісти    
Nomeron
Я вот уже вижу, огромный жилой комплекс на 411, и этот пи.д.ц  на дорогах к нему плюс бедный мемориал на майские праздники.
   Відповісти    
СтарыйОдессит
А теперь вспомните тему с малоэтажной средиземномноморской застройкой не выше 5 этажей
Как должно было быть
И во что превратили наш город киваны и трухановы
И мне таки грусно за Одессу(((
   Відповісти    
Starter
411-ая жемчужина на подходе. Аднан Трухан и иже с ними, когда уже нажрутся-то? В ширину пусть строят, за пределы Одессы и сращивают её с Ильичевском например, новостройками. То что спрос на жилье в Аркадии или где поближе к берегу, никого не должно е.ать. нельзя там строить и все…как бы им не хотелось срубить бабла. Обидно.
   Відповісти    
Victor 6932
Вот это бы было действительно правильно.- Строить вглубь, за пределы существующей Одессы при этом предусмотреть действительно широкие дорогие для проезда в сторону моря, к побережью, создать парковки наверху до съездов к морю и сохранить таким образом рекреационную зону. Будут хорошие проезды-не будет проблемой за 25-30 минут добраться к побережью и не будут жители таких новостроев ущемлены ни-в-чем.
   Відповісти    
Вадим Луговцов
Если вдруг не станет строительной академии, то Одесса ничего не потеряет. Они наклепали архитекторов на несколько поколений вперед. Вообще раздражает, что эти старые маразматики Мироненко, Глазырин и т.д., которые уже одной ногой на том свете решают, как мне молодому жить. Хотя, им сказали — они решение «приняли».
Фашисты во время войны нанесли Одессе меньший урон, чем нынешние городские чиновники и «патриоты» типа беликова с ревой…
   Відповісти    
Гамлет
Я прямо вижу, как прохфессура ездит аж из оттудова на Дидрихсона) у нас все, кому надо было, уже поимели квартиры на Ковалевского
   Відповісти    
   Правила



14 травня
20:06 Троє затримано, щонайменше двоє постраждали: мешканці Одеси сплутали поліцію з ТЦК (оновлено)
7
не перепутали!
17:26 Поліцейський театр у Болграді: показники на фальшивих паспортах, пиво для алкашів та автомобіль тещі для «п'яного» водія
3
16:02 Казна почекає: одеська мерія обіцяє передати величезну парковку на Дельфіні не приватному підприємцю, а КП, але наступного разу
1
13:45 Зять «прем'єра Придністров'я»: депутат Одеської обласної ради приховував 60 мільйонів, а минулого року збіднів фотографии
46
11:51 Есмінець, який відвідував Одесу, йде до Ірану, а танкери тіньового флоту рф ходять через Ла-Манш фотографии
1
09:45 Велику парковку на одеському узбережжі віддають приватникам: вона дістанеться дружині смотрящого за Теплодаром
9
08:35 Масована атака на Одеську область: двоє людей постраждали, пошкоджено портову інфраструктуру (фото) фотографии
13 травня
21:35 Мереживна білизна та штани, що спадають: актори Одеського ТЮГу показали виставу для дорослих фотографии
3
19:59 «Раз — і все»: доктор наук про тріщину в одеській Аркадії, яка може розширитися (відео) видео
21
18:11 Легенда про заначку доньки та родича-капітана не спрацювала: у ексвійськкома з Одеської області конфіскували автомобілі фотографии
2
16:10 Цифрова втома очей: чому офісним працівникам потрібна професійна діагностика зору (на правах реклами)
1
14:52 Вирва посеред двору та сотні вибитих вікон: після атаки дронів на Одесу госпіталізували двох чоловіків фотографии
2
13:25 Масована атака по країні: в Одесі є постраждалі, в одному з дворів спалахнула пожежа (оновлюється) фотографии видео
1
12:55 Вранці хабар — ввечері тушонка: одеський майор тиловик вимагав «абонплату» у постачальника сухих пайків для фронту
3
10:35 Дитяче крісло, веганська шкіра та підстаканники: Одеська облрада купує три нові Toyota
46




Статті:

Линии шезлонгов, бассейны и попытки расширить территорию: как одесские пляжи от Ланжерона до Аркадии готовятся к сезону (фото)

Разбор полетов: как единодушие доверяйцев, «слуги»-отступники и амбиции «мечтателей» ломали сессию

Barracuda украинского юга: как морпехи сами собирают дрон, ставший самым опасным водным хищником (фото, видео)





21:03
Вечером враг нанес удар по энергетической инфраструктуре Одесской области. В результате атаки поврежден энергетический объект в Белгород-Днестровском районе. К счастью, обошлось без пострадавших.

В результате атаки были обесточены 32 населенных пункта. Всего более 15 тысяч абонентов остались без света. По состоянию на 21:00 энергетикам удалось запитать 12 тысяч абонентов.

Читать дальше

20:49
Первый и обновленный комментарии полиции



20:47
Думская. Одесса. Война в Украине
Официальный комментарий полиции Предварительно установлено, что участковые офицеры во время проверки документов у прохожего выявили нарушение правил военного учета. При попытке доставить мужчину в ТЦК, часть граждан вмешалась в ситуацию. Они начали
Полиция добавила в официальный комментарий, что во время проверки документов у прохожего мужчины выяснили, что он находится в розыске как лицо со статусом СЗЧ.



20:32
По словам юридического обозревателя «Думской» Александра Иванова участковые, по сути, не должны заниматься проверкой документов у людей на улице это не входит в их прямые обязанности. Их работа в основном связана с обходом территории, реагированием на бытовые конфликты, дебоширов, а также лиц, находящихся в состоянии алкогольного или наркотического опьянения.

Однако в последнее время участковых всё чаще привлекают к работе вместе с ТЦК, поскольку патрульных сотрудников не хватает.

Читать дальше

20:22
Официальный комментарий полиции

Предварительно установлено, что участковые офицеры во время проверки документов у прохожего выявили нарушение правил военного учета.

Читать дальше

20:03
Думская. Одесса. Война в Украине
Очевидцы засняли момент, как полицейский заливает девушку газовым баллончиком Платим за фото    Все наши соцсети
По предварительной информации, полицейские во время патрулирования обратились к трем молодым людям и попросили показать документы. Двое их предоставили, но у третьего 21-летнего парня их не было и он убежал. Полиция догнала его и задержала, что вызвало недовольство у местных жителей.

Также есть информация, что помимо 21-летнего парня были задержаны ещё два человека. Девушка, которая пыталась разбить окно полицейской машины и, предположительно, несовершеннолетний парень, который бил цепью по стеклу машины.

Сами правоохранители утверждают, что это не мобилизация и сотрудников ТЦК на месте не было. Но местные жители говорят, что видели бус недалеко от места событий.



20:02
ВІДБІЙ повітряної тривоги
206


19:49
Дачное
6617


19:47
Ещё один на Шабо
2923









Думська в Viber
Ми використовуємо cookies    Ok    ×