|
4 серпня 2021, 15:10
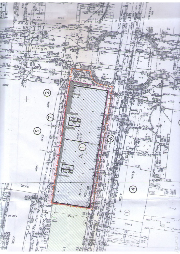
Обновление Канавы: стало известно, как будет выглядеть торгово-офисный центр на месте руин у моста КоцебуСтало известно, как будет выглядеть торгово-офисное здание, которое построят на месте руин по адресу Деволановский спуск, 11 и 11/1. Судя по эскизу, опубликованному муниципальным департаментом архитектуры, в нем будет четыре этажа и мансарда. Высота здания составит 17,1 м. Напомним, градостроительные условия и ограничения на строительство департамент выдал 8 июля. Документом предусмотрена реконструкция двух объектов недвижимости по Деволановскому спуску, 11 и 11/1, принадлежащих гражданину Греции Иоаннису Драгнису. Земельные участки под ними не оформлены в собственность или аренду. Недвижимостью в «канаве» Драгнис владеет с апреля 2005 года. Ему принадлежат помещение №501 площадью 2331,6 кв. м по Деволановскому спуску, 11 и нежилые здания корпуса №2 лит. А,Б,Д общей площадью 3600,4 кв. м на Деволановском спуске, 11/1 (доля в размере 87/100). Оставшиеся 13/100 принадлежат ООО «Морской бизнес центр» (до 2015 были зарегистрированы за акционерным обществом открытого типа «Эпсилон», которого уже не существует). Примечательно, что в конце июня собственником еще одного объекта недвижимости в канаве — нежилого помещения №500 площадью 1445,8 кв. м по Деволановскому спуску, 11 — стало ООО «АМСТЕРДАМ ТАУЕР». Фирму зарегистрировали меньше месяца назад на Жуковского, 15. Единственным учредителем и директором значится некая одесситка Ирина Колесниченко. Уставной капитал — 260 тыс. гривен. В конце прошлого года началась реконструкция многострадального Деволановского спуска. Год назад тендер на реконструкцию улицы почти на 200 млн грн выиграла связанная с мэром Геннадием Трухановым фирма «Ростдорстрой». Речь идет только о дорожных работах и замене коммуникаций: разрушенные здания на спуске находятся в частной собственности, и тратить на них бюджетные средства нельзя. В феврале недвижимость Иоанниса Драгниса на Деволановском спуске, 11 обрушилась, частично завалив не так давно отреставрированную лестницу. Через неделю такая же судьба постигла его здание бывшей фабрики мороженого «Полярная звезда» на углу Торговой и Старопортофранковской. СМЕРТЬ РОСІЙСЬКИМ ОКУПАНТАМ! Помітили помилку? Виділяйте слова з помилкою та натискайте control-enter Новини по цій темі: 25 листопада 2025: У центрі Одеси провалився балкон пам'ятки архітектури: постраждали дві жінки, одна з них у комі (фото, відео) 14 листопада 2025: Зберегти «Одесу»: в серці міста руйнуєтся історична будівля алкогольних магнатів, а рятують її на папері 27 вересня 2025: Відстежуватимуть Оперний і наслідки прильотів: на знакових одеських будівлях встановлять супердатчики (фото) |
Статті:
Читать дальше По состоянию на утро 17 апреля в медицинских учреждениях остаются девять пострадавших, в том числе ребенок. Медики продолжают бороться за жизнь и здоровье каждого. Читать дальше |
||||||||||||||||||||||||||||||||||||||||||||||||
|
Продавец из Одессы подрабатывала агентом фсб: женщине грозит пожизненное
Удар по портовой инфраструктуре и заповеднику: враг атаковал Одесскую область
| |||||||||||||||||||||||||||||||||||||||||||||||||

























