|
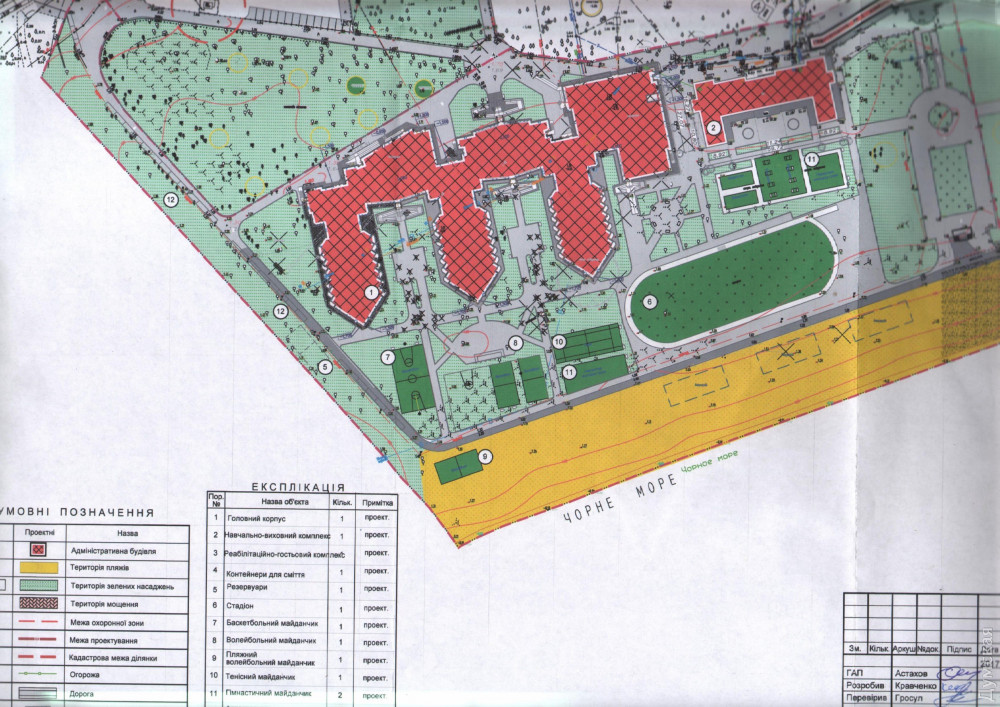
Старейший лагерь детского оздоровительного центра национального значения «Молодая гвардия», «Морской», ждет кардинальная перестройка. Как выяснила «Думская», обветшавшие корпуса лагеря, которые были построены в 1963 году и уже двадцать лет как закрыты, снесут. На их месте появится целый дворец площадью почти 13 тысяч квадратных метров. Трехэтажное здание будет рассчитано на 414 детей, со спальными комнатами на три и четыре места, актовым залом на 200 мест и столовой на 450 мест. Также будут реконструированы учебно-воспитательный и реабилитационно-гостевые комплексы. «Проект сейчас проходит экспертизу, — говорит директор «Молодой гвардии» Эдуард Лебединский. — Потом его рассмотрит Кабинет министров и выделит средства на строительство. Мы надеемся, что работы начнутся в 2019 году». Надо сказать, что в детском центре уже ведутся масштабные строительные работы. Там делают новые футбольные и волейбольно-баскетбольные площадки, ремонтируют теннисные корты, закатывают новым асфальтом дороги. Уже создан веревочный парк развлечений, реконструируется столовая, устанавливается новое внешней освещение с автономными источниками энергии. На все это планируют потратить больше 50 млн грн, выделенных правительством. Часть средств пойдет на исправление выявленных нарушений правил пожарной безопасности, из-за которых ГСЧС планировала подать иск о закрытии ДЦ. По некоторым объектам уже пропущены сроки сдачи, но, как заверил «Думскую» директор «Гвардии» Эдуард Лебединский, до конца года их сдадут. СМЕРТЬ РОСІЙСЬКИМ ОКУПАНТАМ! Помітили помилку? Виділяйте слова з помилкою та натискайте control-enter |
Статті:
Читать дальше Вопрос о передаче коммунальному предприятию, хотя обещали это сделать уже, вынесут на следующее заседание. По данным источников "Думской", оператором этой парковки (126 машиномест из 590 на всем побережье) будет ФОП Яблонская. Карина Яблонская жена Андрея Маковецкого. Последнюю декларацию он подал как главный специалист отдела делопроизводства, контроля и организационной работы исполнительного комитета Теплодарского горсовета, также он владелец охранных фирм «Ультра» и «Гвардия», а также консалтинговой компании "МИД", доли в которых переданы в управление. И парковку хотят отдать через решение исполкома. Читать дальше |
||||||||||||||||||||||||||||||||||||||||||
|
Большую парковку одесского побережья отдают частникам: она достанется жене смотрящего за Теплодаром
| |||||||||||||||||||||||||||||||||||||||||||

























