|
12 червня 2019, 08:23
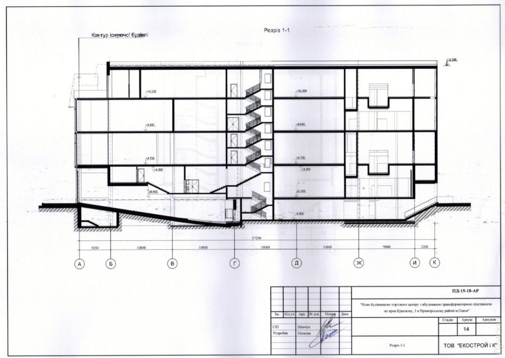
Проект нового торгового центра возле Дерибасовской поменяли: меньше современности, больше классики (фото, документ)Проект нового корпуса торгового центра «Европа», который компания «Белая акация», входящая в группу «Приват» Игоря Коломойского, собирается построить в Красном переулке, претерпел изменения. Фасад, который сначала планировали оформить в стиле хай-тек, решили сделать более классическим (ближе к ар-деко). Новый эскиз торгового центра утвердило недавно вместе с градостроительными условиями и ограничениями муниципальное управление архитектуры. Напомним, год назад Одесский горсовет передал в аренду компании «Белая акация» 15 соток по адресу Красный переулок, 3. Договор заключили сроком на 20 лет. Во время обсуждения решения некоторые депутаты протестовали: мол, создание нового молла в этом месте чревато транспортным коллапсом. Однако проект защищал лично городской голова Геннадий Труханов, который привел в пример города Западной Европы, где якобы много подобных объектов: «Мне очень импонируют города, где исторический центр либо полностью, либо частично закрыт для проезда транспорта. Конечно, все это перспектива, однако решать проблемы с развалинами нужно уже сейчас», — заявил он, после чего депутаты поддержали проект решения. Торговый центр строится на месте двухэтажного здания XIX, которое было снесено в конце 2018-го. СМЕРТЬ РОСІЙСЬКИМ ОКУПАНТАМ! Помітили помилку? Виділяйте слова з помилкою та натискайте control-enter Новини по цій темі: 8 травня 2023: Без висоток і девелоперів: українські та німецькі архітектори пропонують новий тип забудови Одеси та постраждалих міст (фото) 4 лютого 2022: Высотки на Французском и в центре города: активисты рассказали, как нехорошо может поменяться Одесса, и выгнали чиновника (фото, видео) 4 січня 2022: Новый спорткомплекс на Таирова построят за 194,8 млн грн: объявлен тендер (фото, видео) |
Статті:
Читать дальше |
||||||||||||||||||||||||||||||||||||||||||||||||
|
Кадровый коллапс: «Одесгорэлектротранс» ищет всех, пока коллектив разбежался из-за низких зарплат?
| |||||||||||||||||||||||||||||||||||||||||||||||||
















